30.08.25

14:00 - 17:00 Treffen Sie die Architekten und die Bauherrschaft auf der Parzelle zur Projektvorstellung

Willkommen im

Brombeerihuus

Ein Neubauprojekt mit Wurzeln
Wohnen in Epsach

An historischer Lage im geschützten Dorfkern von Epsach entsteht ein neues Mehrfamilienhaus mit Mietwohnungen inspiriert vom ehemaligen Bauernhaus, das hier über Generationen Teil des Dorfkerns war. Das Projekt verbindet Tradition mit Moderne und Weitsicht – ein Ort zum Durchatmen, Wohlfühlen und Wohnen – mit Blick auf Obstbäume, Ackerland und die Alpen.

Brombeerihus Rendering VERVE Architekten GmbH SIA

Aktuelles

Schritt für Schritt schreitet das Projekt Brombeerihuus in Epsach voran. Neu soll das Brombeerihuus nicht acht, sondern neun Wohnungen beherbergen, da insbesondere für 2.5-Zimmerwohnungen ein grosses Interesse besteht.

__________________________________________________________________________________________

Aktuell läuft die Planung des Holzbaus und der Gebäudetechnik im Austausch mit dem Planungsteam und den Behörden. Vieles muss abgeklärt, besprochen, gezeichnet und offeriert werden. Es ist ein Prozess mit Zuversicht.

__________________________________________________________________________________________

Mitte Februar fand ein zweites Treffen mit der Denkmalpflege, dem Berner Heimatschutz und der Gemeinde Epsach für die Qualitätssicherung statt, da sich die Bauparzelle für das Brombeerihuus im geschützten Ortskern von Epsach befindet. Bis jetzt waren die Rückmeldungen dieser Stellen positiv und wohlwollend. 

__________________________________________________________________________________________

Das nächste Ziel ist die Baueingabe im Frühling 2026.

Ortschaft erleben

Abseits jeglichen Durchgangsverkehr liegt Epsach inmitten einer idyllischen Landschaft. Landwirtschaft prägt das Dorfbild bis heute. Das Grundstück am südlichen Dorfrand grenzt direkt an die Landwirtschaftszone. Nur wenige Schritte entfernt liegen der Dorfplatz mit Brunnen, die Gastwirtschaft Epsacher-Pintli und die Bushaltestelle – ein Ort der Begegnung mit Anbindung an den öffentlichen Verkehr. 

Ein Ort mit Seele

«Ist Epsach ein schönes Dorf! Hier möchte ich wohnen.» – Diese Worte einer Spaziergängerin bringen es auf den Punkt. Epsach ist nicht nur schön – es ist ein gutes Dorf. Klein, überschaubar, geschützt. Der Dorfkern ist als schützenswertes Ortsbild von nationaler Bedeutung eingestuft – ein lebendiges Stück Kulturgut.

www.epsach.ch

Karte

Drohnenflug Epsach

Bauprojekt

Das Brombeerihuus

Architektur mit Identität
Eine Hommage an den Ort
www.epsach.ch

Das neue Mehrfamilienhaus Brombeerihuus in Epsach am Dorfplatz 3 ist mehr als ein Neubau – es ist eine Rückbesinnung auf das, was diesen Ort seit Generationen ausmacht: Einfachheit, Bodenständigkeit und Authentizität. 

Die Architektur greift die Geschichte des früheren Bauernhauses auf, das bis 2008 hier stand, und übersetzt sie mit heutigen Mitteln in eine zeitlose Form. Mit seiner langgezogenen Struktur, dem grossen Dach, den natürlichen Materialien und der vertrauten Formensprache fügt sich der Ersatzneubau nahtlos ins historische Ortsbild ein. Holz, Ziegel und Stein sorgen für einen harmonischen Dialog zwischen Alt und Neu.

Wohnkonzept
Offene Räume, klare Strukturen

Die Wohnungen betritt man über den grosszügigen, zentralen Raum mit Küche und Wohnzimmer, der sich über die gesamte Gebäudetiefe bis zur gedeckten und sichtgeschützten Terrasse ausdehnt. Seitlich angeordnet sind Zimmer und Nassräume.
Alle Wohnungen sind hindernisfrei zugänglich und der Lift verbindet die Geschosse bis in den Dachraum, wo sich Hobbyräume und Haustechnik befinden.
Je nach Bedürfnis finden hier Paare, Familien und Alleinwohnende ihren Platz. 

Vielfältige Wohnungsgrössen
Für ein buntes Miteinander

5 × 2.5-Zimmer-Wohnungen
3 × 3.5-Zimmer-Wohnungen
1 × 4.5-Zimmer-Wohnungen
3x Hobbyraum

Diese Vielfalt schafft die Basis für eine generationenübergreifende Nachbarschaft – ein echtes «Haus für alle». 

Aussenraum
Gemeinschaft im Grünen

Das Haus wird über ein kurzes Strässchen zwischen der alten Schmiede und dem Epsacher-Pintli erschlossen. Der halböffentliche Vorplatz mit Nussbaum, Sitzbank und Brunnen ist mehr als nur Eingangsbereich – er ist Treffpunkt, Spielplatz und Ort des Ankommens.

Der grosszügige Grünraum auf der Südseite mit Obstbäumen, Sitzplatz und Feuerstelle lädt ein zum geselligen Abend, Spiel und Erholung, und grenzt unmittelbar an die Landwirtschaftszone.

Autos und Velos finden Platz in Nebengebäuden.

Materialien
Ehrlich, robust und wohnlich

Die äussere Erscheinung wird stark durch die authentische Materialwahl von Ziegel, Holz und Stein geprägt. Dieser Grundsatz soll auch im Innern gelten. Die Räume überzeugen durch schlichte, aber charaktervolle und robuste Materialien. Fensterläden aus Holz regeln den Sonnen- aber auch den Sichtschutz. Natürliche Materialien schaffen eine hohe Behaglichkeit und ein angenehmes Raumklima. Holz- und mineralische Oberflächen werden die Atmosphäre im Innenraum prägen.

Nachhaltigkeit
Wohnen mit Verantwortung

Das Projekt folgt einer ganzheitlichen Nachhaltigkeitsstrategie:

• Kompakter Baukörper für geringen Energieverbrauch 
• Holzbauweise ohne Untergeschoss zur CO₂-Reduktion 
• Erdwärmesonden & Photovoltaik
• Regenwassernutzung zur Bewässerung des grossen Gartens 

All dies macht das Brombeerihuus zu einem ökologisch vorbildlichen Projekt mit langer Lebensdauer – im Einklang mit der Landschaft und dem Ortsbild von Epsach. 

Parzellensituation

Situationsplan

Konzept Ansicht

Südfassade

Konzept Ansicht

Westfassade

Konzept Ansicht

Nordfassade

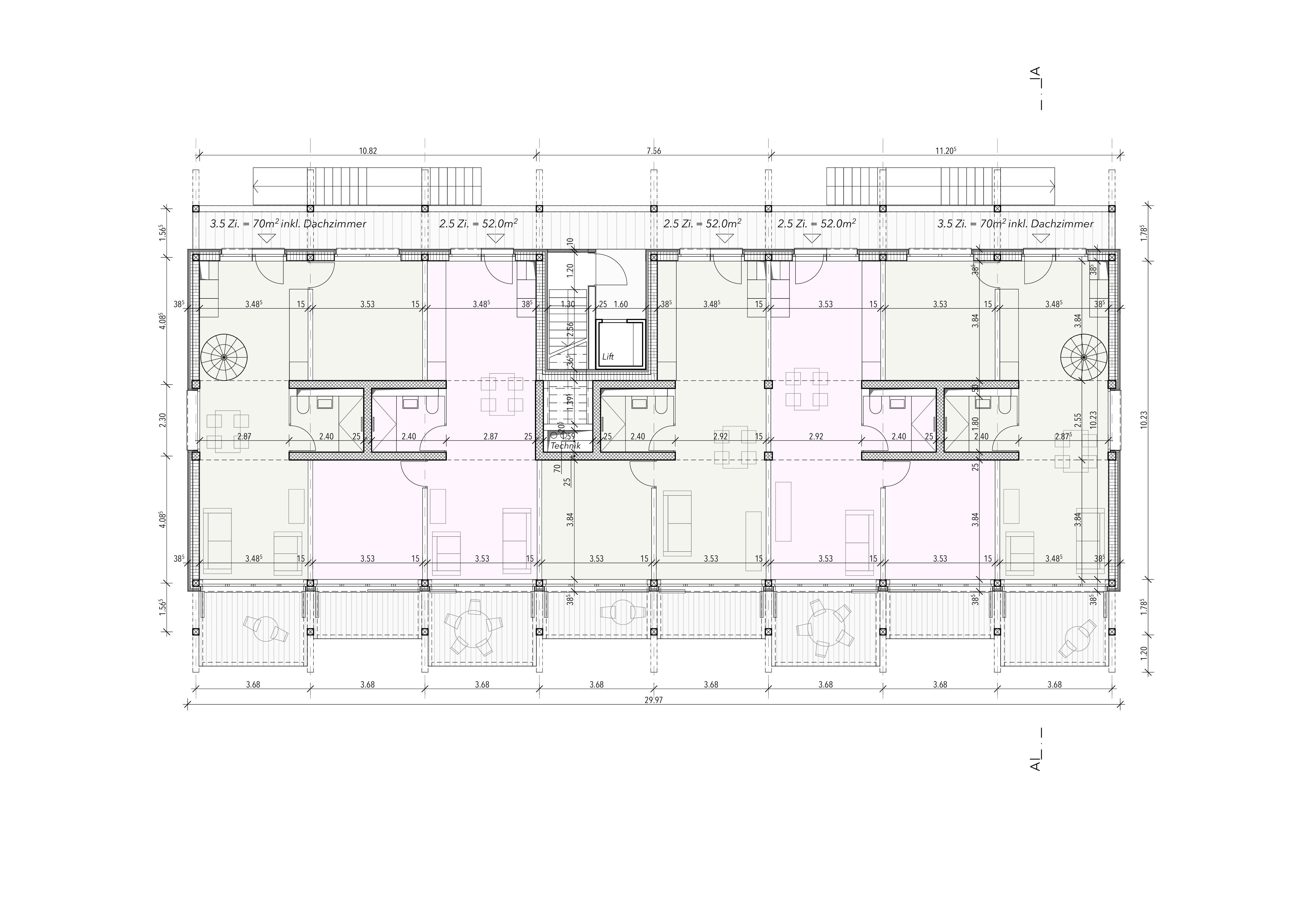
Grundrisspläne

Erdgeschoss

Grundrisspläne

Obergeschoss

Grundrisspläne

Dachgeschoss

Konzept Ansicht

Gebäudeschnitt

Historie
Eine persönliche Geschichte

Erinnerungen einer Eigentümerin

«Bis 2008 stand hier ein altes Bauernhaus. Um 1880 wuchs mein Urgrossvater darin auf. 100 Jahre später lebten meine Schwester und ich als Jugendliche hier. Wir genossen die Freiheit, den Blick auf die Alpen – und die Brombeeren, welche die ganze Westfassade überwucherten.» 
Beatrice Möri, die Eigentümerin der Parzelle, ist in Epsach aufgewachsen. Ihre Erinnerungen an das ursprüngliche Haus, an Sommer auf dem Märit in Bern mit selbstgepflückten Brombeeren und das Gefühl von Freiheit fliessen in die Vision des neuen Hauses ein. Es soll nicht nur ein Ersatzbau sein, sondern ein würdiger Nachfolger – mit Seele, mit Geschichte.


«Was für ein schönes Haus! Hier möchte ich wohnen.» 

An einer Wohnung interessiert?

Wir befinden uns in den abschliessenden Arbeiten bezüglich der Planung des Neubaus und würden gerne auf Ihre Wohnungswünsche Rücksicht nehmen.